- トップページ
- 久太郎町・北久宝寺町・南久宝寺町 1~2丁目
- マエダビル本社ビル 1階 1+7号室
マエダビル本社ビル 1階 1+7号室
【物件番号】44003
久太郎町・北久宝寺町・南久宝寺町 1~2丁目エリアの賃貸事務所
入居初期費用(税別)
| 敷金 | 3,400,000 円 |
|---|---|
| 仲介手数料 | 298,500円 |
月額賃料(税別)
| 賃料 | 298,500 円 |
|---|---|
| 共益費 | 42,000 円 |
※別途消費税が必要です(敷金・保証金以外)
![]()
| 種別 | 事務所・店舗(物件番号:44003) |
|---|---|
| 物件名 | マエダビル本社ビル |
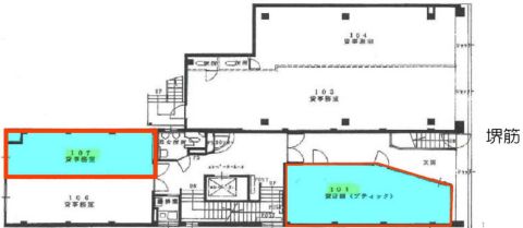
| 所在階 | 1階部分 1+7号室 |
| 住所 | 大阪市中央区北久宝寺町2-2-13 |
| 最寄駅 | 堺筋線 『
堺筋本町 』
3 分
堺筋線 『 長堀橋 』 5 分 御堂筋線 『 本町 』 5 分 |
| 契約面積 | 25.0 坪/ 82.65 ㎡ |
| 敷金 | 3,400,000 円 |
| 解約引 | 1,980,000円 |
| 賃料 | 総額 298,500 円 (税別)・坪単価 11,940 円/坪 (税別) |
| 共益費 | 総額 42,000 円 (税別)・坪単価 1,680 円/坪 (税別) |
| 月額合計 | 総額 340,500 円 (税別)・坪単価 13,620 円 (税別) |
▲記載条件は募集価格です。条件交渉など、詳細においてはお問い合わせ下さいませ。
| 構造 | 鉄骨鉄筋コンクリート造 9階建 /地下 1 階 |
|---|---|
| 築年数 | 1979/1 (リニューアル: 1993/8 ) |
| 営業マンのコメント | 101号(路面店舗・15坪)+107号(1階奥事務所・10坪)のセット貸し。飲食不可です。 堺筋に面した賃貸事務所ビル、10坪~40坪まで広さのバリエーション豊富です。 |













