- トップページ
- 道修町・平野町 3~4丁目
- 大明ビル(タイメイ) 6階 フロア号室
大明ビル(タイメイ) 6階 フロア号室
【物件番号】21243
道修町・平野町 3~4丁目エリアの賃貸事務所
入居初期費用(税別)
| 敷金 | 相談 |
|---|---|
| 仲介手数料 | 521,880円 |
月額賃料(税別)
| 賃料 | 521,880 円 |
|---|---|
| 共益費 | 賃料に含む |
※別途消費税が必要です(敷金・保証金以外)
![]()
| 種別 | 貸事務所(物件番号:21243) |
|---|---|
| 物件名 | 大明ビル(タイメイ) |
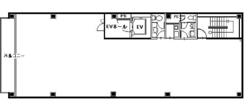
| 所在階 | 6階部分 フロア号室 |
| 住所 | 大阪市中央区平野町4-6-3 |
| 最寄駅 | 御堂筋線 『
淀屋橋 』
5 分
御堂筋線 『 本町 』 5 分 四ツ橋線 『 肥後橋 』 6 分 |
| 契約面積 | 43.49 坪/ 143.77 ㎡ |
| 敷金 | 相談 |
| 解約引 | 無し |
| 賃料 | 総額 521,880 円 (税別)・坪単価 12,000 円/坪 (税別) |
| 共益費 | 総額 賃料に含む (税別)・坪単価 賃料に含む (税別) |
| 月額合計 | 総額 521,880 円 (税別)・坪単価 12,000 円 (税別) |
▲記載条件は募集価格です。条件交渉など、詳細においてはお問い合わせ下さいませ。
| 構造 | S(鉄骨)造 6階建 |
|---|---|
| 築年数 | 2003/1 【新耐震基準】 (リニューアル: 2005/05 ) |
| 営業マンのコメント | 御堂筋ビジネスエリアの美麗ビル 全面リニューアル済・淀屋橋のワンフロア貸しオフィス。 |
| 備考 | オートロック |















