- トップページ
- 淡路町・瓦町 3~4丁目
- 御堂筋MTRビル 8階
御堂筋MTRビル 8階
【物件番号】53430
淡路町・瓦町 3~4丁目エリアの賃貸事務所
入居初期費用(税別)
| 敷金 | 12ヶ月 |
|---|---|
| 仲介手数料 | お問合下さいませ |
月額賃料(税別)
| 賃料 | お問合下さいませ |
|---|---|
| 共益費 | お問合下さいませ |
※別途消費税が必要です(敷金・保証金以外)
![]()
| 種別 | 貸事務所(物件番号:53430) |
|---|---|
| 物件名 | 御堂筋MTRビル |
| 所在階 | 8階部分 |
| 住所 | 大阪市中央区淡路町3-6-3 |
| 最寄駅 | 御堂筋線 『
本町 』
3 分
御堂筋線 『 淀屋橋 』 4 分 四ツ橋線 『 本町 』 6 分 |
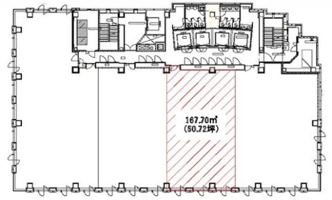
| 契約面積 | 50.72 坪/ 167.67 ㎡ |
| 敷金 | 12ヶ月 |
| 解約引 | 全額返金 |
| 賃料 | お電話・メールにてお問合下さい。 |
| 共益費 | お電話・メールにてお問合下さい。 |
| 月額合計 | お電話・メールにてお問合下さい。 |
▲記載条件は募集価格です。条件交渉など、詳細においてはお問い合わせ下さいませ。
| 構造 | 鉄骨鉄筋コンクリート造 13階建 /地下 2 階 |
|---|---|
| 築年数 | 1999/3 【新耐震基準】 |
| 営業マンのコメント | 御堂筋に面したハイグレード賃貸事務所ビル 大阪メトロ御堂筋線 本町駅徒歩3分 淀屋橋駅・肥後橋駅・四ツ橋本町駅徒歩圏内 大阪ビジネス街本町・淀屋橋エリアの大型賃貸オフィス |
| 備考 | リフレッシュルーム |













