- トップページ
- 備後町・安土町 1~2丁目
- 吉川産業ビル 2階 1号室
吉川産業ビル 2階 1号室
【物件番号】55602
備後町・安土町 1~2丁目エリアの賃貸事務所
入居初期費用(税別)
| 敷金 | 1,228,500 円 |
|---|---|
| 仲介手数料 | 109,200円 |
月額賃料(税別)
| 賃料 | 109,200 円 |
|---|---|
| 共益費 | 68,250 円 |
※別途消費税が必要です(敷金・保証金以外)
![]()
| 種別 | 貸事務所(物件番号:55602) |
|---|---|
| 物件名 | 吉川産業ビル |
| 所在階 | 2階部分 1号室 |
| 住所 | 大阪市中央区安土町1-8-1 |
| 最寄駅 | 堺筋線 『
堺筋本町 』
2 分
御堂筋線 『 本町 』 5 分 堺筋線 『 北浜 』 5 分 |
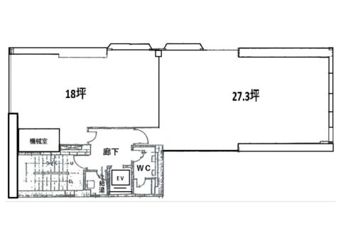
| 契約面積 | 27.3 坪/ 90.25 ㎡ |
| 敷金 | 1,228,500 円 |
| 解約引 | 245,700円 |
| 賃料 | 総額 109,200 円 (税別)・坪単価 4,000 円/坪 (税別) |
| 共益費 | 総額 68,250 円 (税別)・坪単価 2,500 円/坪 (税別) |
| 月額合計 | 総額 177,450 円 (税別)・坪単価 6,500 円 (税別) |
▲記載条件は募集価格です。条件交渉など、詳細においてはお問い合わせ下さいませ。
| 構造 | S(鉄骨)造 5階建 |
|---|---|
| 築年数 | 1976/10 |
| 営業マンのコメント | 大阪メトロ堺筋線 堺筋本町駅徒歩2分 北浜駅利用可能 アクセス良 堺筋本町エリアのローコスト賃貸オフィス。堺筋本町駅、北浜駅利用可能 |













